Skip to main content
Career
Contact Us
Clients
News
Who We Are
Projects
Home
Search form
Search
Login
Home
Projects
Who We Are
News
Clients
Contact Us
Career
back »
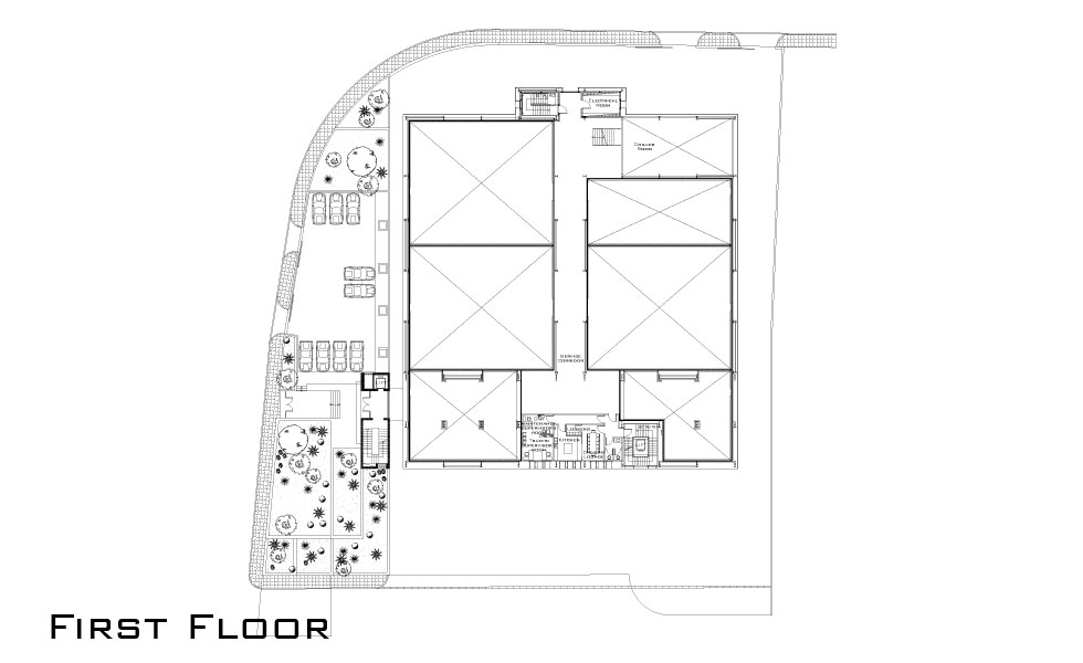
Al Kaylani Cold Rooms Warehouse
Images
Drawings
Video
Methodology
Construction
Text
Share